Capannone in vendita a Mezzolombardo (TN)
€ 480.000
Trento
Dettagli
Contratto Vendita
Rif Ag 294
Prezzo € 480.000
Provincia Trento
Comune Mezzolombardo
Classe energetica
Non indicata
Riscaldamento inesistente
Condizioni abitabile
Consistenze
| Descrizione | Superficie | Sup. comm. |
|---|---|---|
| Principali | ||
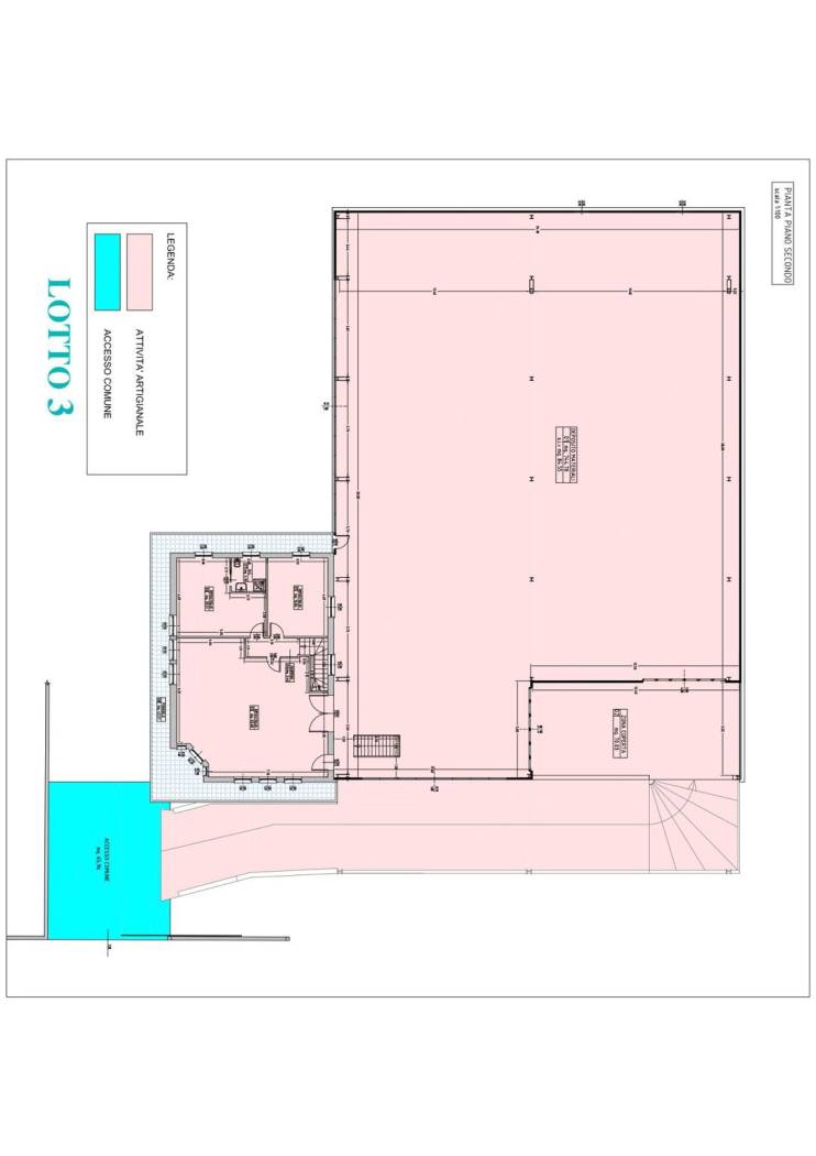
| Capannone - 2° piano | 915 Mq | 915 Mqc |
| Totale | 915 Mqc | |
A Mezzolombardo, in zona produttiva ottimamente servita, vendiamo capannone artigianale-industriale a secondo piano con annessi uffici e zona coperta.
Richiedi maggiori informazioni
Mappa
Zoom della mappa
Apri con:
Apple Maps
Google Maps
Waze
Contattaci
Agenzia Immobiliare Zenari
Via del Brennero, 316 38121 TRENTO (TN)
Via del Brennero, 316 38121 TRENTO (TN)
P.IVA: 00813810223
0461261081





